Presentació
L’estació de bomba prefabricada HDPE és un equip de tractament d’aigües residuals d’alta eficiència que integra el cos de la bomba, la canonada, la vàlvula, el sistema de control electrònic, etc. Aquest producte s’utilitza àmpliament en el drenatge urbà, el tractament d’aigües residuals i la recollida d’aigua de pluja i altres camps.
Funcions
Excel·lent resistència a la corrosió
El material HDPE en si té una forta resistència a la corrosió química i pot resistir eficaçment l’erosió per diversos medis químics com els àcids, els alcalis i les sals. En el procés de tractament d’aigües residuals i d’aigua de pluja, els nostres productes poden funcionar de manera estable durant molt de temps sense degradació o fracàs del rendiment a causa de la corrosió.
Control intel·ligent
L’estació de bomba prefabricada HDPE està equipada amb sistemes de control intel·ligents, que poden realitzar funcions com el control remot, l’ajust automàtic i l’alarma de falles. Els usuaris poden veure l’estat de funcionament de l’estació de bombes en temps real a través d’un ordinador o telèfon mòbil i realitzar una operació o manteniment remot segons sigui necessari.
Excel·lent segellat
Els nostres productes se centren en el segellat en dissenyar-se i cada interfície de l'estació de bombes adopta una tecnologia de segellat de gran estàndard per assegurar-se que tot el sistema de l'estació de bombes no estigui de fuites. En aplicacions pràctiques, aquesta característica pot evitar que les aigües residuals es filtrin a l’entorn circumdant i reduir la contaminació secundària.

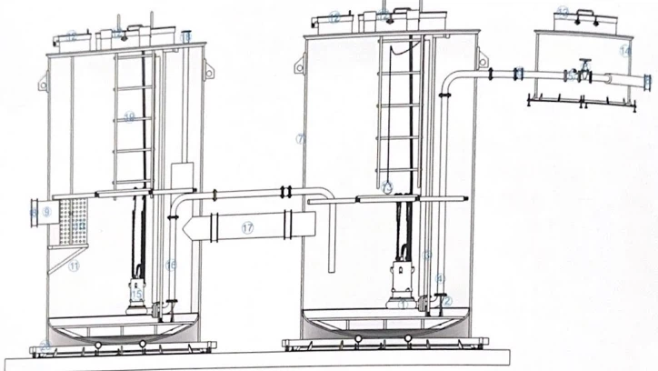
|
Núm |
Nom |
Qualitat del material |
|
1 |
Bombes submergibles |
Ferro colat / acer inoxidable |
|
2 |
Placa base d'acoblament |
Ferro colat / acer inoxidable |
|
3 |
Guia d'acoblament de la bomba d'aigua Rod |
Acer inoxidable |
|
4 |
Canonades a pressió |
Acer inoxidable |
|
5 |
Comproveu les vàlvules |
Fosa |
|
6 |
Vàlvules de porta |
Fosa |
|
7 |
Simplificat |
Hdpe/hmpp |
|
8 |
Accessoris de flexió |
Goma d'esborrar |
|
9 |
Canonada d'entrada |
Hdpe/hmpp |
|
10 |
Reixa de cistella |
Acer inoxidable |
|
11 |
Bracket de reixa |
Acer inoxidable |
|
12 |
Placa de coberta |
Aliatge d’acer inoxidable/alumini |
|
13 |
Surar |
- |
|
14 |
Eixos de vàlvules |
Hdpe/hmpp |
|
15 |
Bombes de fangs |
Ferro colat/acer inoxidable |
|
16 |
Canonada de descàrrega de fangs |
Hmpp |
|
17 |
Outlet de trampes de greix |
Hmpp |
|
18 |
Canonada d'aspiració |
Acer inoxidable |
|
19 |
Escala d’escalada |
Acer inoxidable/HMPP |
|
20 |
Rod de pressió anti-flotació |
Acer galvanitzat/acer inoxidable |
Etiquetes populars: Estació de bombes prefabricada de HDPE, proveïdors de l'estació de bombes prefabricats per a la Xina HDPE, fàbrica

